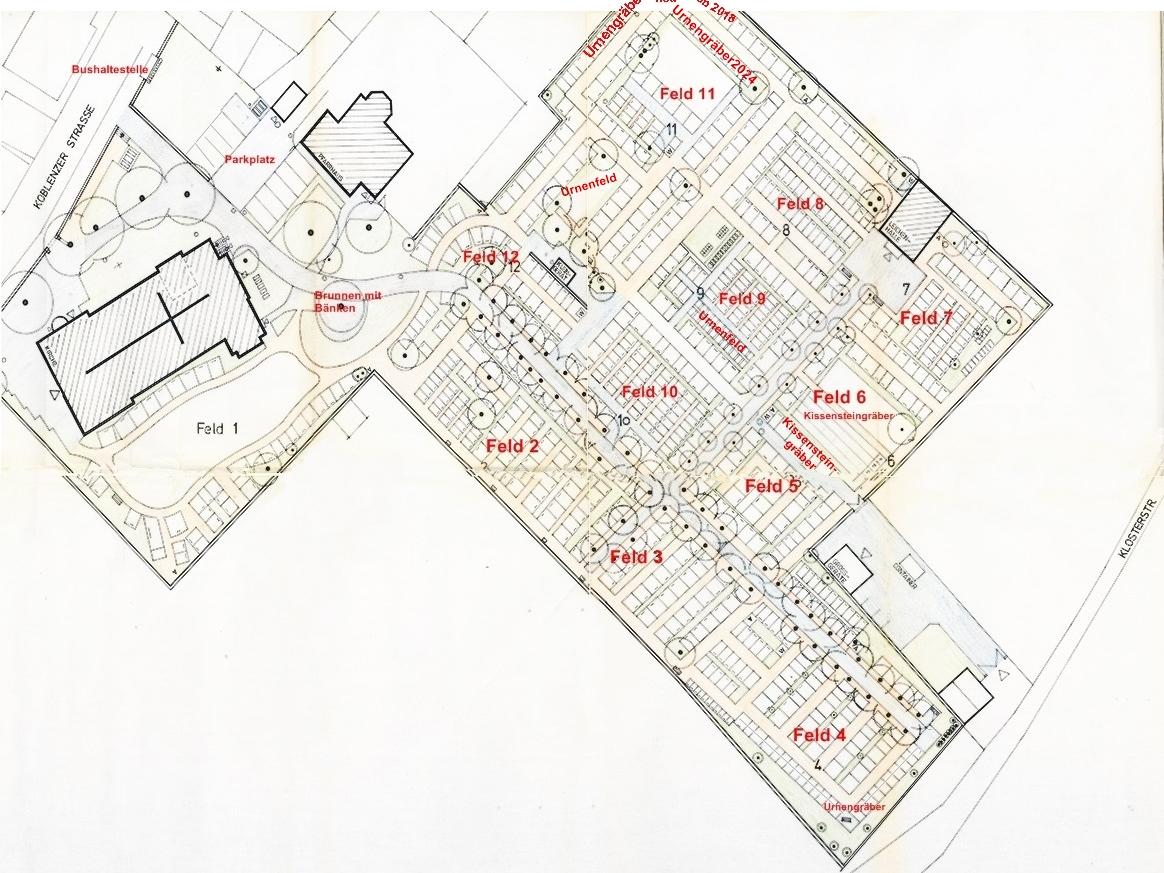
Ganz neu können Sie hier unseren neuen digitalen Friedhofsplan nutzen.
Sie können
- sehen, welche Grabstellen belegt und welche frei sind
- nach Bestatteten suchen und sich sogar zu der Grabstätte navigieren lassen
- sich die Legende anzeigen lassen mit Wasserstellen, Bänken, Abfallbehälter


